SOLD OUT
レクシオ宮前平ヒルズ|新規リノベ物件
ROOM POINT & PLAN
~リノベーション~
リノベーション内容
■壁・天井クロス新規交換
■フローリング新規交換
■建具・下足入れ新規交換
■システムキッチン新規交換
■照明器具新規交換
■カーテンレール新規交換
■スイッチ・コンセント新規交換
■トイレ(手洗・ウォシュレット付)新規交換
■ユニットバス新規交換
■洗面台新規交換
■浴室乾燥機新規交換
■防水パン新規交換
■洗濯水栓新規交換
■給湯器新規交換
■分電盤新規交換
■収納新規交換
CONCEPT
VINTAGEシリーズ
レクシオ宮前平ヒルズ
レクシオ宮前平ヒルズ
OUTLINE
| 物件名 | レクシオ宮前平ヒルズ | 交 通 | 東急田園都市線「宮前平」駅徒歩17分 |
|---|---|---|---|
| 所在地 | 神奈川県川崎市宮前区土橋6丁目14番地8 | 在階/階数 | 5階/10階建 |
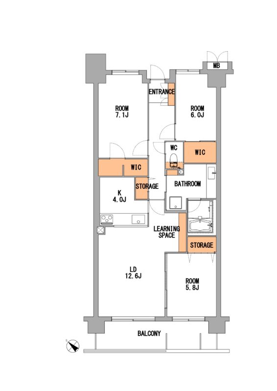
| 間取り | 3LDK | 専有面積 | 85.75㎡ |
| バルコニー | 11.05㎡ | 築年数 | 2003年7月 |
| リノベ竣工年月 | 2025年10月 | 総戸数 | 123戸 |
| 現況 | 価格 | ||
| 共益費/管理費 | 7,700円(月額) | 修繕積立金 | 16,720円(月額) |
| 敷地内駐車場 | 有 | 建物構造 | 鉄筋コンクリート造 |
| 向き | 南西 | 土地権利 | 所有権 |
| 引渡/入居時期 | 更新日 | 2025年12月18日 | |
| 建物種別 | 3LDK/マンションリノベーション | 備考 |

