SELL
日神パレステージ戸田 3,499万|新規リノベ物件
ROOM POINT & PLAN
~リノベーション~
リノベーション内容
■壁・天井クロス新規交換
■フローリング新規交換
■建具・下足入れ新規交換
■システムキッチン新規交換
■照明器具新規交換
■カーテンレール新規交換
■スイッチ・コンセント新規交換
■トイレ(手洗・ウォシュレット付)新規交換
■ユニットバス新規交換
■洗面台新規交換
■浴室乾燥機新規交換
■防水パン新規交換
■洗濯水栓新規交換
■給湯器新規交換
■分電盤新規交換
■収納新規交換
CONCEPT
VINTAGEシリーズ
日神パレステージ戸田
日神パレステージ戸田
OUTLINE
| 物件名 | 日神パレステージ戸田 | 交 通 | JR埼京線「戸田」駅徒歩11分 |
|---|---|---|---|
| 所在地 | 埼玉県戸田市大字新曽2056 | 在階/階数 | 3階/4階建 |
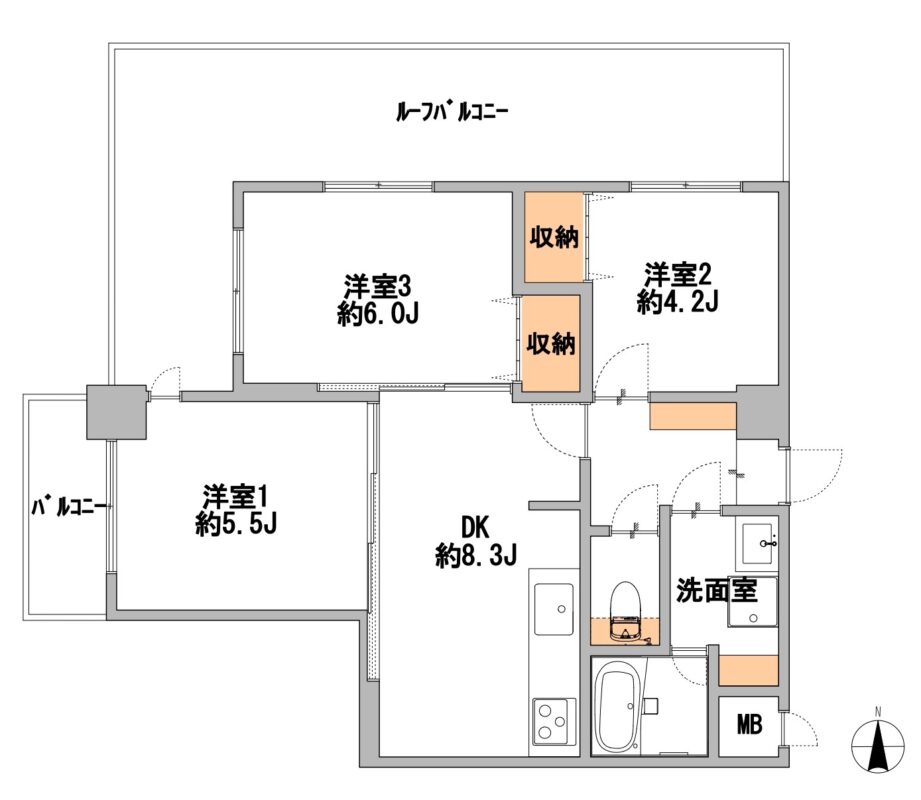
| 間取り | 3DK | 専有面積 | 54.21㎡ |
| バルコニー | 3.36㎡/ルーフバルコニー21.77㎡ | 築年数 | 1994年8月 |
| リノベ竣工年月 | 2025年10月 | 総戸数 | 28戸 |
| 現況 | 空室 | 価格 | 3,499万 |
| 共益費/管理費 | 15,400円(月額) | 修繕積立金 | 12,015円(月額) |
| 敷地内駐車場 | 有 ※現在空無 | 建物構造 | 鉄筋コンクリート造 |
| 向き | 西 | 土地権利 | 所有権 |
| 引渡/入居時期 | 相談 | 更新日 | 2025年11月21日 |
| 建物種別 | 3DK/マンションリノベーション | 備考 | 取引態様:売主 管理形態:全部委託/日勤管理 |

